| Autor |
Nachricht |
|
Daffman
|
Betreff des Beitrags: 2. Programm - Schraubendarstellung Frage Verfasst: 10.12.2010, 14:31 |
|
| Versuchskaninchen |
 |
 |
Registriert: 17.09.2010, 13:37 Beiträge: 64
|
|
Hallo!
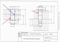
Ich habe hinten dran zwei dateien mithochgeladen, die eine (SkriptScan.jpg) ist, wie der name schon sagt, aus dem skript und ich habe zwei rote PFeil eingefügt, weil ich mich ernsthaft frage, woher diese Striche kommen. Ich finde leider nirgends eine schlüssige erklärung.
Ein blauer Pfeil ist auch noch dabei, diese Abstufung vom Gewinde, wo es zu ende ist, ist im Skript bei der ÖNORM M 5010 als x1 bezeichnet. aber es steht nirgends, wie lange x1 ist. Ich habe diese jetzt einfach in einem 45° Winkel eingezeichne.
Weiters habe ich dann noch meine Zeichnung (Zeichnung.pdf) mithochgeladen, ohne diesen sonderbaren strich. ist dies dann auch richtig oder falsch??
Ich bedanke mich schon im Vorhinein für die Antworten!!
MFG Alexander
| Dateianhänge: |
Dateikommentar: Scan aus dem Skript

SkriptScan.jpg [ 128.56 KiB | 1692-mal betrachtet ]
|
Dateikommentar: meine Zeichnung
Zeichnung.pdf [48.08 KiB]
927-mal heruntergeladen
|
_________________ Wenn du gut sein willst, dann nimm zuerst an, daß du schlecht bist.
- Epiktet
|
|
 |
|
 |
|
bdomanig
|
Betreff des Beitrags: Re: 2. Programm - Schraubendarstellung Frage Verfasst: 10.12.2010, 15:47 |
|
| Versuchskaninchen |
 |
 |
Registriert: 06.09.2010, 16:24 Beiträge: 83
|
also die roten striche sind so wie ich das verstanden habe das "stilisierte gewinde"  wäre also blöd und auch logischerweise falsch wenn du sie weglässt. ich hoffe das hat geholfen! lg
_________________ Masterstudent Biotech // Vice-President Club Biotech // Referent für Bildung und Politik der ÖH BOKU
___________________________________________________________________________________________
„Wer sich Steine zurechtlegen kann, über die er stolpert, hat Erfolg in den Naturwissenschaften.“ Zitat von
|
|
 |
|
 |
|
Daffman
|
Betreff des Beitrags: Re: 2. Programm - Schraubendarstellung Frage Verfasst: 10.12.2010, 16:03 |
|
| Versuchskaninchen |
 |
 |
Registriert: 17.09.2010, 13:37 Beiträge: 64
|
|
Okay und wie weiß ich dann, wie weit die Entfernung zwischen Schraubenaußenseite (ein dicker Strich) und diesem "stilisierte gewinde" sein soll?
_________________ Wenn du gut sein willst, dann nimm zuerst an, daß du schlecht bist.
- Epiktet
|
|
 |
|
 |
|
AndiD
|
Betreff des Beitrags: Re: 2. Programm - Schraubendarstellung Frage Verfasst: 10.12.2010, 16:51 |
|
| Zellenzähler/in |
 |
 |
Registriert: 30.10.2006, 17:05 Beiträge: 331 Wohnort: 2202 Enzersfeld
|
Der Blaue Pfeil zeigt auf den Gewindeauslauf. Dieser kann beliebig lang/kurz gewählt werden, da die Linie nur dazu da ist, um zu zeigen, dass das Gewinde nicht plötzlich aufhört und dieser Teil des Gewindes (von der Konstruktionsseite her) nicht relevant ist. Ich schätze, dass das x1 heißt, das es so lange ist wie 1x die Steigung des Gewindes (P) - egal  Zu dem Roten Pfeil: Bei der Linie 1 handelt es sich um die Bohrung, in die die Schraube gesteckt wurde (dicke Volllinie). Bei der Linie 2 handelt es sich um den Außendurchmesser des Gewindes deiner Schraube (dicke Vollline). Bei der Linie 3 handelt es sich um den Innendurchmesser des Gewindes deiner Schraube (dünne Volllinie). Der Durchmesser der Bohrung in der die Schraube steckt, sollte min. 1 mm größer sein als der Durchmesser deiner Schraube (also bei M16 -> D18) Die Maße für die Gewindedurchmesser findest du in einer Tabelle ein paar Seiten vorher. Zu deiner Zeichnung:So wie du es gezeichnet hast, steckt deine Schraube bei beiden Werkstücke in einem Gewinde "fest" und ist als falsch zu werten. btw: Durchmesserzeichen ("D65" und "D50,85") und das Zeichen für ein Metrisches Gewinde ("M 30") fehlt noch und die "4" gehört auf die Maßlinie. Dann sollts passen  PS: Das "D" sollte ein Durchmesserzeichen sein [D = O + /] 
| Dateianhänge: |

Schrauben.gif [ 65.98 KiB | 1462-mal betrachtet ]
|
|
|
 |
|
 |
|
Daffman
|
Betreff des Beitrags: Re: 2. Programm - Schraubendarstellung Frage Verfasst: 11.12.2010, 12:35 |
|
| Versuchskaninchen |
 |
 |
Registriert: 17.09.2010, 13:37 Beiträge: 64
|
|
Mahlzeit!
Vielen vielen dank! Also ich habe das Gewinde ergänzt. Die Schraffur gehört bis zum 2. (mittleren) dicken Strich (Vollinie) oder? Weiters habe ich bei 50,85 bzw 56 das Durchmesserzeichen (Ø) hinzugefügt und bei 30 ein M.
Zur beschriftung: gehört hier wirklich Schraube, Mutter und Beilagscheibe genau geschrieben?
Vielen dank nochmal!
LG Alexander
_________________ Wenn du gut sein willst, dann nimm zuerst an, daß du schlecht bist.
- Epiktet
|
|
 |
|
 |
|
AndiD
|
Betreff des Beitrags: Re: 2. Programm - Schraubendarstellung Frage Verfasst: 11.12.2010, 13:03 |
|
| Zellenzähler/in |
 |
 |
Registriert: 30.10.2006, 17:05 Beiträge: 331 Wohnort: 2202 Enzersfeld
|
Hey Daffman. Jeder Zeit wieder gern  Du hast die Linie 1 ergänzt, oder? Das ist die Bohrung. Das Gewinde hast du eh schon gezeichnet (dicke+dünne Volllinie; 2+3). Die Schraffur der festzuschraubenden Werkstücke geht nur bis zur Bohrung, also zur Linie 1. Die Beschriftung kannst aus dem Skript übernehmen.
|
|
 |
|
 |
|
Daffman
|
Betreff des Beitrags: Re: 2. Programm - Schraubendarstellung Frage Verfasst: 11.12.2010, 13:39 |
|
| Versuchskaninchen |
 |
 |
Registriert: 17.09.2010, 13:37 Beiträge: 64
|
Na dann nehme ich das Angebot gleich wieder in Anspruch: ad SChraffur: ok dann muss ich noch das bisschen schraffur in dem 1 mm zwischenraum vergeben! ad Beschriftung: Ich habe es leider schon beschriftet, und zwar mit: M30 x 80 ÖNORM M 5010 (für die Schraube und die Mutter, die auch auf diesem Normblatt oben ist) Scheibe: M 30 DIN 126ad novum (Schraubverbindung): zur Schraubverbindung habe ich auch eine Frage. Der Bohrkegel am Ende ist im Skript so beschrieben: Skript Kapitel 4 /Schnittdarstellung (Seite 16) hat geschrieben: Die bei den Sack- u. abgestuften löchern entstehenden Borhkegel sind einheitlich 120° zu zeichnen, jedoch nicht zu bemaßen. Bei der Schraubverbindung haben wir ja ein Sackloch. Doch in der Zeichnung gleich über dem Zitat ist ein Sackloch mit einem Bohrkegelwinkel von ~150° und bei den Beispielen von Schraubverbindungen im Skript (Kapitel 7 / Gewinde- und Schraubdarstellungen Seite 25) ist das Beispiel mit einem Winkel von 145° beim Bohrkegel gezeichnet. Ich habé meine Zeichnung ( Zeichnung Schraubverbindung.jpg)angehägt und genau einen Winkel von 120° eingezeichnet, nur das wir dann schon sehr spitz... Welches ist jetzt richtig?? MFG Alexander
| Dateianhänge: |

Zeichnung Schraubverbindung.JPG [ 47.58 KiB | 1406-mal betrachtet ]
|
_________________ Wenn du gut sein willst, dann nimm zuerst an, daß du schlecht bist.
- Epiktet
|
|
 |
|
 |
|
AndiD
|
Betreff des Beitrags: Re: 2. Programm - Schraubendarstellung Frage Verfasst: 11.12.2010, 14:07 |
|
| Zellenzähler/in |
 |
 |
Registriert: 30.10.2006, 17:05 Beiträge: 331 Wohnort: 2202 Enzersfeld
|
Ich hab mir mal erlaubt in deiner Zeichnung zu zeichnen und haben ergänzt, was mir auf die schnelle ins Auge gesprungen ist. @ Beschriftung Du kannst natürlich angeben, nach welcher Norm deine Schraube, Mutter, Beilagscheiben usw. gezeichnet sind. Um eine detailierte Beschriftung wie im Skriptum wirst du allerdings nicht herumkommen. Ich weiß, dass es im Arbeitsalltag nicht unbedingt nötig ist Normteile zu bemaßen, aber für die Übungen wird es verlangt. Sonst zeichnet jeder was er will, solange er nur "nach ÖNORM XXX" schreibt  @ Bohrkegel Die Angaben beziehen sich auf die Spitze des Bohrers und hat in der Regel 120°.
| Dateianhänge: |

GMB Schraube.png [ 227.16 KiB | 1439-mal betrachtet ]
|
|
|
 |
|
 |
|
Daffman
|
Betreff des Beitrags: Re: 2. Programm - Schraubendarstellung Frage Verfasst: 11.12.2010, 14:41 |
|
| Versuchskaninchen |
 |
 |
Registriert: 17.09.2010, 13:37 Beiträge: 64
|
Okay alles ausgebessert ich glaube bei der beschriftung haben wir aneinenander vorbeigeredet, ich meinte den Namen, bzw die Bezeichnung, die unten hingeschrieben wird. Die Maße zeichne ich selbstverständlicherweise in der zeichnung ein Ich glaube das waren alle meine Fragen zur Zeit, ich bedanke mich sehr für die ausführliche hifle und das dazu einem samstag Thanks und schönen Tag Alexander
_________________ Wenn du gut sein willst, dann nimm zuerst an, daß du schlecht bist.
- Epiktet
|
|
 |
|
 |
|
AndiD
|
Betreff des Beitrags: Re: 2. Programm - Schraubendarstellung Frage Verfasst: 11.12.2010, 14:56 |
|
| Zellenzähler/in |
 |
 |
Registriert: 30.10.2006, 17:05 Beiträge: 331 Wohnort: 2202 Enzersfeld
|
Na dann passts ja Danke, dir auch 
|
|
 |
|
 |
|
h0740124
|
Betreff des Beitrags: Re: 2. Programm - Schraubendarstellung Frage Verfasst: 15.03.2011, 19:35 |
|
| Versuchskaninchen |
 |
 |
Registriert: 12.03.2008, 10:31 Beiträge: 11
|
|
@ Daffman wie kommst du bei deiner Kopfschraubenverbindung auf die Gewindelänge von 66mm? wäre mir echt sehr geholfen! lg
|
|
 |
|
 |
|
Daffman
|
Betreff des Beitrags: Re: 2. Programm - Schraubendarstellung Frage Verfasst: 15.03.2011, 20:43 |
|
| Versuchskaninchen |
 |
 |
Registriert: 17.09.2010, 13:37 Beiträge: 64
|
|
im skriptum auf seite 15 im kapitel 7 steht in der waagrechten spalte unter b
lg alex
_________________ Wenn du gut sein willst, dann nimm zuerst an, daß du schlecht bist.
- Epiktet
|
|
 |
|
 |
|
h0740124
|
Betreff des Beitrags: Re: 2. Programm - Schraubendarstellung Frage Verfasst: 15.03.2011, 21:11 |
|
| Versuchskaninchen |
 |
 |
Registriert: 12.03.2008, 10:31 Beiträge: 11
|
|
 |
|
 |
|
h0841162
|
Betreff des Beitrags: Re: 2. Programm - Schraubendarstellung Frage Verfasst: 15.08.2011, 19:37 |
|
| Versuchskaninchen |
 |
 |
Registriert: 09.11.2008, 23:12 Beiträge: 20
|
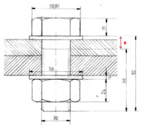
Hallo, ich hätte eine Frage. Ich habe mir die Skizze von den Kollegen angeschaut und mir ist da was nicht klar. Wenn man die Skizze anschaut kommt auf der Skizze a=80-66 raus, also 14. Wenn man in die Tabelle schaut steht dort a=8 oder habe ich was durcheinander gebracht? Wäre froh wenn mir jemand helfen könnte. 
| Dateianhänge: |

Schraubenverbindung.png [ 93.15 KiB | 1469-mal betrachtet ]
|
|
|
 |
|
 |
|
AndiD
|
Betreff des Beitrags: Re: 2. Programm - Schraubendarstellung Frage Verfasst: 18.08.2011, 16:22 |
|
| Zellenzähler/in |
 |
 |
Registriert: 30.10.2006, 17:05 Beiträge: 331 Wohnort: 2202 Enzersfeld
|
Du hast recht; a = 8 laut Tabelle. Das ist aber nicht der einzige Fehler, den dein Freund gemacht hat 
|
|
 |
|
 |
|