Hallo Triologie,
vielleicht hilft dir die Zeichnung, die ich für dich angefertigt habe

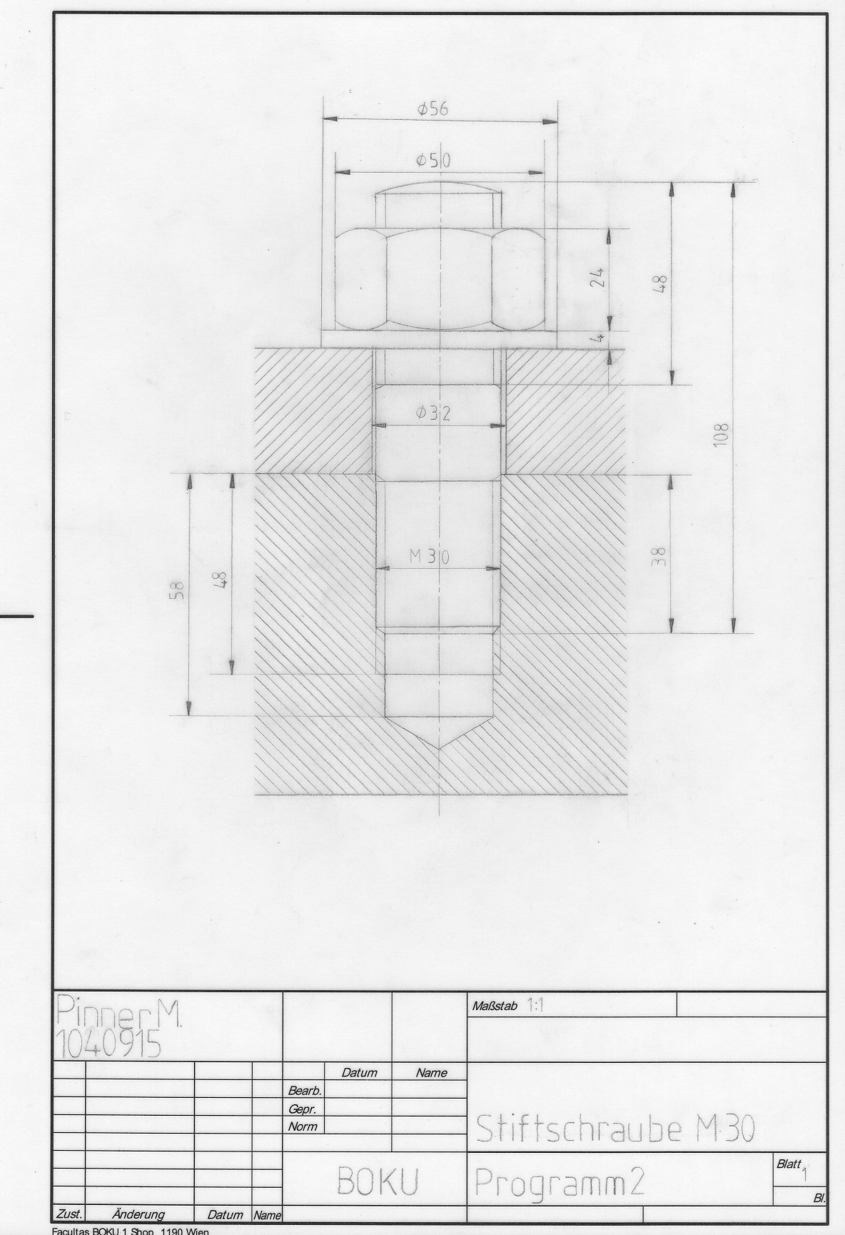
Dateianhang:
Stiftschraube.png [ 370.21 KiB | 1251-mal betrachtet ]
Im Bereich (1) steckt die Stiftschraube in der Bohrung; das Loch der Bohrung ist dabei größer als die Schraube --> die Schraube berührt die obere Platte nicht. Die Schraffur der Platte geht nur bis zum Loch.
Im Bereich (2) wurde die Schraube in das Gewinde der unteren Platte gedreht; wie du richtig gesagt hast, überdeckt hier das Außengewinde (die Schraube) das Innengewinde (die Bohrung).
Im Bereich (3) sieht man jenen Teil des Gewindes der Bohrung, in dem die Schraube NICHT steckt *); also nur das Innengewinde; die Schraffur geht bis zum Innersten Teil des Gewindes **)
Im Bereich (4) ist kein Gewinde mehr zu sehen, nur noch die "nackte" Bohrung ***)
-----
Der "Abschluss, 77mm" ist die gesamte nutzbare Schraubenlänge (die Kappe am oberen Ende zählt nur dazu

)
-----
Ich weiß nicht wie weit dir das hilft, wenn du noch Fragen hast meld dich

*) Das Gewinde wird immer länger gefertigt als es sein müsste (besser mehr als zu wenig).
**) Schraffuren gehen "immer" bis zu einer dicken Volllinien
***) Gewinde werden NIE bis zum Ende einer Bohrung gefertigt, es bleicht IMMER ein bisschen Bohrung ohne Gewinde über.