Statistiken
Posts
29.550
Topics
30.078
LBT USER
12.116
 
 
Im Forum online
244
Besucher
1
Registrierter
243
Gäste
Mitglieder: Majestic-12 [Bot]
 
 
LBT - Lebensmittel und Biotechnologie • Thema anzeigen - 2. Programm - Schraubendarstellung Frage
Ein neues Thema erstellen Auf das Thema antworten  [ 23 Beiträge ]  Gehe zu Seite 1, 2  Nächste
Autor Nachricht
 Betreff des Beitrags: 2. Programm - Schraubendarstellung Frage
 Beitrag Verfasst: 10.12.2010, 14:31 
Versuchskaninchen
Versuchskaninchen

Registriert: 17.09.2010, 13:37
Beiträge: 64
Hallo!

Ich habe hinten dran zwei dateien mithochgeladen, die eine (SkriptScan.jpg) ist, wie der name schon sagt, aus dem skript und ich habe zwei rote PFeil eingefügt, weil ich mich ernsthaft frage, woher diese Striche kommen. Ich finde leider nirgends eine schlüssige erklärung.

Ein blauer Pfeil ist auch noch dabei, diese Abstufung vom Gewinde, wo es zu ende ist, ist im Skript bei der ÖNORM M 5010 als x1 bezeichnet. aber es steht nirgends, wie lange x1 ist. Ich habe diese jetzt einfach in einem 45° Winkel eingezeichne.

Weiters habe ich dann noch meine Zeichnung (Zeichnung.pdf) mithochgeladen, ohne diesen sonderbaren strich. ist dies dann auch richtig oder falsch??

Ich bedanke mich schon im Vorhinein für die Antworten!!

MFG Alexander


Dateianhänge:
Dateikommentar: Scan aus dem Skript
SkriptScan.jpg
SkriptScan.jpg [ 128.56 KiB | 1692-mal betrachtet ]
Dateikommentar: meine Zeichnung
Zeichnung.pdf [48.08 KiB]
924-mal heruntergeladen

_________________
Wenn du gut sein willst, dann nimm zuerst an, daß du schlecht bist. 

- Epiktet
Nach oben 
   
 
 Betreff des Beitrags: Re: 2. Programm - Schraubendarstellung Frage
 Beitrag Verfasst: 10.12.2010, 15:47 
Versuchskaninchen
Versuchskaninchen
LBT User Foto

Registriert: 06.09.2010, 16:24
Beiträge: 83
also die roten striche sind so wie ich das verstanden habe das "stilisierte gewinde" :D wäre also blöd und auch logischerweise falsch wenn du sie weglässt. :shock:

ich hoffe das hat geholfen! :mrgreen:

lg

_________________

Masterstudent Biotech // Vice-President Club Biotech // Referent für Bildung und Politik der ÖH BOKU



___________________________________________________________________________________________



„Wer sich Steine zurechtlegen kann, über die er stolpert, hat Erfolg in den Naturwissenschaften.“  Zitat von



Nach oben 
   
 
 Betreff des Beitrags: Re: 2. Programm - Schraubendarstellung Frage
 Beitrag Verfasst: 10.12.2010, 16:03 
Versuchskaninchen
Versuchskaninchen

Registriert: 17.09.2010, 13:37
Beiträge: 64
Okay und wie weiß ich dann, wie weit die Entfernung zwischen Schraubenaußenseite (ein dicker Strich) und diesem "stilisierte gewinde" sein soll?

_________________
Wenn du gut sein willst, dann nimm zuerst an, daß du schlecht bist. 

- Epiktet


Nach oben 
   
 
 Betreff des Beitrags: Re: 2. Programm - Schraubendarstellung Frage
 Beitrag Verfasst: 10.12.2010, 16:51 
Zellenzähler/in
Zellenzähler/in
LBT User Foto

Registriert: 30.10.2006, 17:05
Beiträge: 331
Wohnort: 2202 Enzersfeld
Der Blaue Pfeil zeigt auf den Gewindeauslauf. Dieser kann beliebig lang/kurz gewählt werden, da die Linie nur dazu da ist, um zu zeigen, dass das Gewinde nicht plötzlich aufhört und dieser Teil des Gewindes (von der Konstruktionsseite her) nicht relevant ist.
Ich schätze, dass das x1 heißt, das es so lange ist wie 1x die Steigung des Gewindes (P) - egal :)

Zu dem Roten Pfeil:
Bei der Linie 1 handelt es sich um die Bohrung, in die die Schraube gesteckt wurde (dicke Volllinie).
Bei der Linie 2 handelt es sich um den Außendurchmesser des Gewindes deiner Schraube (dicke Vollline).
Bei der Linie 3 handelt es sich um den Innendurchmesser des Gewindes deiner Schraube (dünne Volllinie).

Der Durchmesser der Bohrung in der die Schraube steckt, sollte min. 1 mm größer sein als der Durchmesser deiner Schraube (also bei M16 -> D18)
Die Maße für die Gewindedurchmesser findest du in einer Tabelle ein paar Seiten vorher.

Zu deiner Zeichnung:
So wie du es gezeichnet hast, steckt deine Schraube bei beiden Werkstücke in einem Gewinde "fest" und ist als falsch zu werten.
btw: Durchmesserzeichen ("D65" und "D50,85") und das Zeichen für ein Metrisches Gewinde ("M 30") fehlt noch und die "4" gehört auf die Maßlinie. Dann sollts passen :D

PS: Das "D" sollte ein Durchmesserzeichen sein [D = O + /] :)


Dateianhänge:
Schrauben.gif
Schrauben.gif [ 65.98 KiB | 1460-mal betrachtet ]
Nach oben 
   
 
 Betreff des Beitrags: Re: 2. Programm - Schraubendarstellung Frage
 Beitrag Verfasst: 11.12.2010, 12:35 
Versuchskaninchen
Versuchskaninchen

Registriert: 17.09.2010, 13:37
Beiträge: 64
Mahlzeit!

Vielen vielen dank! Also ich habe das Gewinde ergänzt. Die Schraffur gehört bis zum 2. (mittleren) dicken Strich (Vollinie) oder?
Weiters habe ich bei 50,85 bzw 56 das Durchmesserzeichen (Ø) hinzugefügt und bei 30 ein M.

Zur beschriftung: gehört hier wirklich Schraube, Mutter und Beilagscheibe genau geschrieben?

Vielen dank nochmal!

LG Alexander

_________________
Wenn du gut sein willst, dann nimm zuerst an, daß du schlecht bist. 

- Epiktet


Nach oben 
   
 
 Betreff des Beitrags: Re: 2. Programm - Schraubendarstellung Frage
 Beitrag Verfasst: 11.12.2010, 13:03 
Zellenzähler/in
Zellenzähler/in
LBT User Foto

Registriert: 30.10.2006, 17:05
Beiträge: 331
Wohnort: 2202 Enzersfeld
Hey Daffman.

Jeder Zeit wieder gern :)

Du hast die Linie 1 ergänzt, oder? Das ist die Bohrung. Das Gewinde hast du eh schon gezeichnet (dicke+dünne Volllinie; 2+3).

Die Schraffur der festzuschraubenden Werkstücke geht nur bis zur Bohrung, also zur Linie 1.

Die Beschriftung kannst aus dem Skript übernehmen.


Nach oben 
   
 
 Betreff des Beitrags: Re: 2. Programm - Schraubendarstellung Frage
 Beitrag Verfasst: 11.12.2010, 13:39 
Versuchskaninchen
Versuchskaninchen

Registriert: 17.09.2010, 13:37
Beiträge: 64
Na dann nehme ich das Angebot gleich wieder in Anspruch:

ad SChraffur: ok dann muss ich noch das bisschen schraffur in dem 1 mm zwischenraum vergeben!

ad Beschriftung: Ich habe es leider schon beschriftet, und zwar mit:
M30 x 80 ÖNORM M 5010 (für die Schraube und die Mutter, die auch auf diesem Normblatt oben ist)
Scheibe: M 30 DIN 126

ad novum (Schraubverbindung): zur Schraubverbindung habe ich auch eine Frage. Der Bohrkegel am Ende ist im Skript so beschrieben:
Skript Kapitel 4 /Schnittdarstellung (Seite 16) hat geschrieben:
Die bei den Sack- u. abgestuften löchern entstehenden Borhkegel sind einheitlich 120° zu zeichnen, jedoch nicht zu bemaßen.

Bei der Schraubverbindung haben wir ja ein Sackloch. Doch in der Zeichnung gleich über dem Zitat ist ein Sackloch mit einem Bohrkegelwinkel von ~150° und bei den Beispielen von Schraubverbindungen im Skript (Kapitel 7 / Gewinde- und Schraubdarstellungen Seite 25) ist das Beispiel mit einem Winkel von 145° beim Bohrkegel gezeichnet. Ich habé meine Zeichnung (Zeichnung Schraubverbindung.jpg)angehägt und genau einen Winkel von 120° eingezeichnet, nur das wir dann schon sehr spitz...

Welches ist jetzt richtig??

MFG Alexander


Dateianhänge:
Zeichnung Schraubverbindung.JPG
Zeichnung Schraubverbindung.JPG [ 47.58 KiB | 1404-mal betrachtet ]

_________________
Wenn du gut sein willst, dann nimm zuerst an, daß du schlecht bist. 

- Epiktet
Nach oben 
   
 
 Betreff des Beitrags: Re: 2. Programm - Schraubendarstellung Frage
 Beitrag Verfasst: 11.12.2010, 14:07 
Zellenzähler/in
Zellenzähler/in
LBT User Foto

Registriert: 30.10.2006, 17:05
Beiträge: 331
Wohnort: 2202 Enzersfeld
Ich hab mir mal erlaubt in deiner Zeichnung zu zeichnen und haben ergänzt, was mir auf die schnelle ins Auge gesprungen ist.

@ Beschriftung
Du kannst natürlich angeben, nach welcher Norm deine Schraube, Mutter, Beilagscheiben usw. gezeichnet sind. Um eine detailierte Beschriftung wie im Skriptum wirst du allerdings nicht herumkommen. Ich weiß, dass es im Arbeitsalltag nicht unbedingt nötig ist Normteile zu bemaßen, aber für die Übungen wird es verlangt. Sonst zeichnet jeder was er will, solange er nur "nach ÖNORM XXX" schreibt ;-)

@ Bohrkegel
Die Angaben beziehen sich auf die Spitze des Bohrers und hat in der Regel 120°.


Dateianhänge:
GMB Schraube.png
GMB Schraube.png [ 227.16 KiB | 1438-mal betrachtet ]
Nach oben 
   
 
 Betreff des Beitrags: Re: 2. Programm - Schraubendarstellung Frage
 Beitrag Verfasst: 11.12.2010, 14:41 
Versuchskaninchen
Versuchskaninchen

Registriert: 17.09.2010, 13:37
Beiträge: 64
Okay alles ausgebessert :D

ich glaube bei der beschriftung haben wir aneinenander vorbeigeredet, ich meinte den Namen, bzw die Bezeichnung, die unten hingeschrieben wird. Die Maße zeichne ich selbstverständlicherweise in der zeichnung ein :P

Ich glaube das waren alle meine Fragen zur Zeit, ich bedanke mich sehr für die ausführliche hifle und das dazu einem samstag :o :o

Thanks und schönen Tag
Alexander

_________________
Wenn du gut sein willst, dann nimm zuerst an, daß du schlecht bist. 

- Epiktet


Nach oben 
   
 
 Betreff des Beitrags: Re: 2. Programm - Schraubendarstellung Frage
 Beitrag Verfasst: 11.12.2010, 14:56 
Zellenzähler/in
Zellenzähler/in
LBT User Foto

Registriert: 30.10.2006, 17:05
Beiträge: 331
Wohnort: 2202 Enzersfeld
Na dann passts ja :mrgreen:

Danke, dir auch :)


Nach oben 
   
 
 Betreff des Beitrags: Re: 2. Programm - Schraubendarstellung Frage
 Beitrag Verfasst: 15.03.2011, 19:35 
Versuchskaninchen
Versuchskaninchen

Registriert: 12.03.2008, 10:31
Beiträge: 11
@ Daffman
wie kommst du bei deiner Kopfschraubenverbindung auf die Gewindelänge von 66mm? wäre mir echt sehr geholfen!
lg


Nach oben 
   
 
 Betreff des Beitrags: Re: 2. Programm - Schraubendarstellung Frage
 Beitrag Verfasst: 15.03.2011, 20:43 
Versuchskaninchen
Versuchskaninchen

Registriert: 17.09.2010, 13:37
Beiträge: 64
im skriptum auf seite 15 im kapitel 7 steht in der waagrechten spalte unter b

lg alex

_________________
Wenn du gut sein willst, dann nimm zuerst an, daß du schlecht bist. 

- Epiktet


Nach oben 
   
 
 Betreff des Beitrags: Re: 2. Programm - Schraubendarstellung Frage
 Beitrag Verfasst: 15.03.2011, 21:11 
Versuchskaninchen
Versuchskaninchen

Registriert: 12.03.2008, 10:31
Beiträge: 11
dankeschön!


Nach oben 
   
 
 Betreff des Beitrags: Re: 2. Programm - Schraubendarstellung Frage
 Beitrag Verfasst: 15.08.2011, 19:37 
Versuchskaninchen
Versuchskaninchen

Registriert: 09.11.2008, 23:12
Beiträge: 20
Hallo,

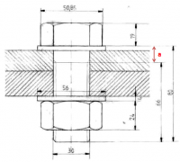
ich hätte eine Frage. Ich habe mir die Skizze von den Kollegen angeschaut und mir ist da was nicht klar. Wenn man die Skizze anschaut kommt auf der Skizze a=80-66 raus, also 14. Wenn man in die Tabelle schaut steht dort a=8 oder habe ich was durcheinander gebracht?

Wäre froh wenn mir jemand helfen könnte. :)


Dateianhänge:
Schraubenverbindung.png
Schraubenverbindung.png [ 93.15 KiB | 1469-mal betrachtet ]
Nach oben 
   
 
 Betreff des Beitrags: Re: 2. Programm - Schraubendarstellung Frage
 Beitrag Verfasst: 18.08.2011, 16:22 
Zellenzähler/in
Zellenzähler/in
LBT User Foto

Registriert: 30.10.2006, 17:05
Beiträge: 331
Wohnort: 2202 Enzersfeld
Du hast recht; a = 8 laut Tabelle.

Das ist aber nicht der einzige Fehler, den dein Freund gemacht hat :wink:


Nach oben 
   
 
Beiträge der letzten Zeit anzeigen:  Sortiere nach  
 
Ein neues Thema erstellen Auf das Thema antworten  [ 23 Beiträge ]  Gehe zu Seite 1, 2  Nächste

Foren-Übersicht » Verfahrenstechnik » Einführung in die Prozesstechnik UE


Wer ist online?

Mitglieder in diesem Forum: 0 Mitglieder und 2 Gäste

 
 

 
Du darfst keine neuen Themen in diesem Forum erstellen.
Du darfst keine Antworten zu Themen in diesem Forum erstellen.
Du darfst deine Beiträge in diesem Forum nicht ändern.
Du darfst deine Beiträge in diesem Forum nicht löschen.
Du darfst keine Dateianhänge in diesem Forum erstellen.

Suche nach:
Gehe zu:  
cron